Abode Pod
Abode Pod

LODGE

With its striking design, The Lodge features a welcoming, light-filled space. As with all of our Pod models, it is designed to sit harmoniously in its surroundings, making it ideal as luxury ancillary accommodation for a range of organisations and businesses.

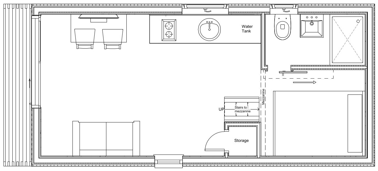
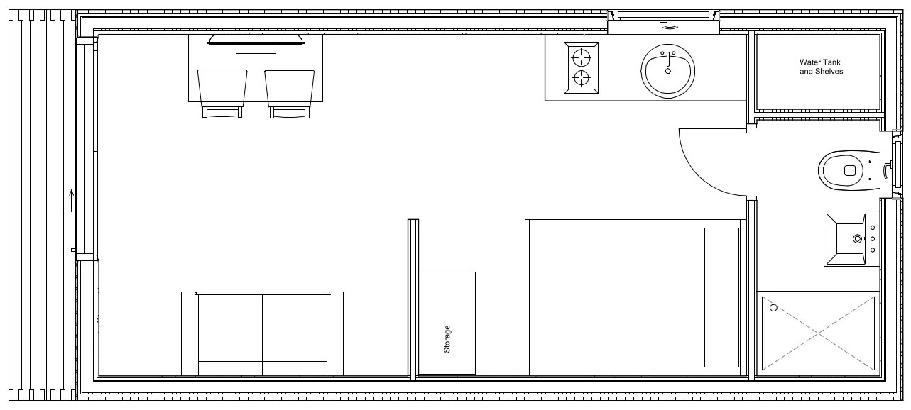
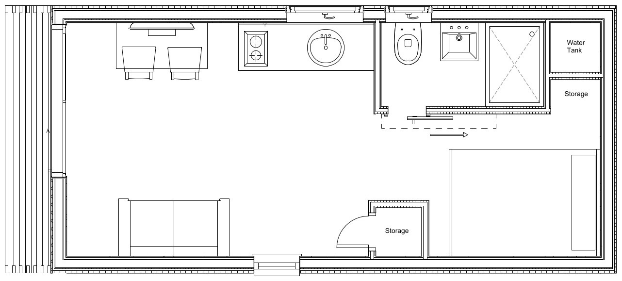
There is a choice of five layouts, all featuring a kitchenette and a well-appointed shower room. Bunk beds can be added within two of our layout options.

Our larger Lodges can also include a mezzanine, perfect as sleeping space for children.

SPECIFICATION

  • Steel framed chassis
  • Complete SIP panel construction
  • Trickle vented glazing
  • UPVC double glazed windows and doors
  • Water resistant vinyl plank flooring
  • Decorative MDF to internal walls & MDF ceiling
  • Redwood cladding to some internal walls
  • Western Red Cedar cladding to external front wall
  • Thermowood cladding to external rear wall
  • Box profile metal sheets to side & roof
  • Minimum 4 twin sockets & USB outlets
  • Internal & external LED lighting
  • Slip resistant decked step
  • Anthracite metal roof sheets & trims
  • Mains operated smoke detector
  • Shower room to include:
    shower, shower tray & screen, wash hand basin, wc, extractor fan, electric towel rail & mirror
  • Kitchenette to include:
    1800mm counter, 800mm base unit, 600mm integrated fridge, 400mm drawer line base unit, 2 ring electric hob, shelf mounted microwave, sink unit with taps
  • Storage cupboard
  • Privacy wall
  • Electric 120 litre water heater
  • Electric underfloor heating
  • 10 year structural guarantee
  • Steel framed chassis
  • Complete SIP panel construction
  • Trickle vented glazing
  • UPVC double glazed
  • Water resistant vinyl plank flooring
  • Decorative MDF to internal walls & MDF ceiling
  • Redwood cladding to some internal walls
  • Western Red Cedar cladding to external front wall
  • Thermowood cladding to external rear wall
  • Box profile metal sheets to sides & roof
  • Minimum 4 twin sockets & USB outlets
  • Internal & external LED lighting
  • Slip resistant decked step
  • Anthracite metal roof sheets & trims
  • Mains operated smoke detector
  • Shower room to include:
    shower, shower tray & screen, wash hand basin, wc, extractor fan, electric towel rail & mirror
  • Kitchenette to include:
    1800mm counter, 800mm base unit, 600mm integrated fridge, 400mm drawer line base unit, 2 ring electric hob, shelf mounted microwave, sink unit with taps
  • Storage cupboard
  • Privacy wall
  • Electric 120 litre water heater
  • Electric underfloor heating
  • 10 year structural guarantee

Electrical Requirements:

All our fully fitted pods are designed to have a low electrical supply with a maximum demand of 32 Amps. Normal consumption will be between 10-15 Amps. Water heating is time clock controlled so it heats up overnight (water heater does have a boost button for additional demand).

Our 4 metre high Lodge can include a mezzanine, making it ideal for families with children. Accessed by stairs, a mezzanine can add extra sleeping space, perfect for younger guests.

SIZES & PRICES

DIMENSIONSPRICES
D x W x HEXCLUDING
VAT
INCLUDING
VAT @ 5%
7m x 3.5m x 3.5m£39,950£41,947.50
8m x 3.5m x 3.5m£43,875£46,068.75
7m x 3.5m x 4m£44,875£47,118.75
7m x 3.5m x 4m
with Mezzanine
£47,111£49,466,55
8m x 3.5m x 4m£45,875£48,168.75
8m x 3.5m x 4m
with Mezzanine
£48,311£50,726.55
9m x 3.5m x 3.5m
with Bunk Beds
£47,800£50,190

FLOOR PLANS

OPTIONAL UPGRADES

  • LPG boiler
  • Timber or composite external cladding of your choice to the sides
  • Additional windows
  • Additional sockets and/or lights
  • Bunk beds
  • Kitchen Upgrade comprises: 2400mm counter, 800mm base unit, 600mm integrated fridge, 400mm drawer line base unit, 600mm base unit with microwave, 2 ring electric hob, sink unit with taps
  • Furniture
Lodge Pod

CONTACT US

If you would like to find out more, discuss a project you’re planning or request a quote, please call us on 01452 501455 or email us at info@podsbyfuturerooms.com.

Alternatively, please complete the form and we’ll be in touch.

    OUR RANGE OF MODULAR PODS

    Cube Glamping Pod

    CUBE

    D x W x H
    6-7m x 3m x 2.8m
    7-8m x 3.5m x 2.8m

    Barn

    BARN

    D x W x H
    7-8m x 3.5m x 3.5m

    Abode

    ABODE

    D x W x H
    7-8m x 3.5m x 3.5m
    7-8m x 3.5m x 4m

    Retreat

    RETREAT

    D x W x H
    7-8m x 3.5m x 3.5m
    7-8m x 3.5m x 4m

    Lodge

    LODGE

    D x W x H
    7-8m x 3.5m x 3.5m
    7-8m x 3.5m x 4m

    Cabin

    CABIN

    D x W x H
    7-8m x 3.5m x 3.5m
    7-8m x 3.5m x 4m

    Duo

     DUO

    D x W x H
    6m x 6m x 3.5m
    7m x 7m x 3.5m

    Trio

    TRIO

    Call to discuss